Eladó Iroda Budapest VI. kerület - Király utca

252 m2Alapterület 11 Szoba
159 000 000 Ft Ár
394575Azonosító
További adatok

Utcai Kilátás

Felújított Állapot

Tégla Szerkezet

Hőszivattyú Fűtés

Utcán, közterületen Parkolás

Emelet Alagsor

Nincs Lift

Kiváló Tömegközlekedés

1887 Építés éve

Exkluzív belvárosi irodai, üzleti tér – igényesen felújítva, átgondolt elrendezés, sokféle tevékenységhez ideális, mindez 252 m²-en.

-- Scroll down for English version --

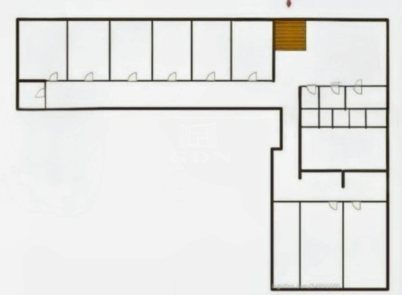
Eladásra kínálunk egy 252 m²-es, 2024-ben teljes körűen felújított szuterén üzleti ingatlant a belváros szívében, utcai bejárattal. Az ingatlan eredetileg szálláshelynek készült, végül irodai funkcióval működött, így továbbra is számos hasznosítási lehetőséget kínál. Besorolása jelenleg iroda, hitelezhető.

Főbb adatok:
✅ 252 m² alapterület
✅ 9 nagy szoba + 2 kisebb szoba + 2 tároló
✅ 2 WC + 1 zuhanyzó (további bővíthető)
✅ Beépített konyha modern gépekkel
✅ Utcafronti szobák nagy belmagasságúak, belső helyiségek: 240 cm

Felújítás és műszaki tartalom:
✅ 2024-ben teljes körű felújítás – új villanyvezetékek, burkolatok
✅ Kamera- és riasztórendszer előkészítve minden helyiségben
✅ Csatornarendszer ipari darálóval és emelőszivattyúval
✅ Hőszivattyú és H-tarifás villanyóra a gazdaságos működésért
✅ Korszerű légtechnika minden helyiségben: fűtés, hűtés, friss levegő, a hőmérséklet minden helyiségben külön szabályozható
✅ Több helyiségben kiegészítő hűtő-fűtő klímák
✅ 3 rétegű, hőszigetelt műanyag nyílászárók
✅ Proxi kártyás beléptetőrendszer
✅ Internethálózat (CAT6) minden helyiségben

Építészeti különlegességek:
✅ Különleges, egyedi hangulatot ad a boltíves tégla mennyezet, oldalfalak valamint a fehérre vakolt felületek és modern világítás találkozása

Környezeti előnyök:
A belváros szívében található ingatlan közlekedési szempontból kiváló:
✅ Tömegközlekedés percekre (villamos, metró és busz)
✅ Éttermek, kávézók, üzletek közvetlen közelben
✅ Kulturális és szórakozási lehetőségek a gyalogos távolságon belül

Kinek való ez az ingatlan?
✅ Vállalkozóknak, akik modern irodát keresnek a belváros szívében
✅ Befektetőknek, akik szobakiadással vagy bérbeadással szeretnének jövedelmet termelni
✅ Kreatív vagy üzleti projekteket támogató egyedi tér kialakításához (pl. hostel, masszázsszalon, klub, alkotóműhely, oktatás, workshop, rövid távú bérlés több bérlő részére)

Besorolás és átminősítés:
✅ Jelenleg iroda besorolású, de parkolóhely megváltása nélkül átminősíthető üzlethelyiségnek.

Az ingatlan azonnal birtokba vehető – ne habozzon, valósítsa meg terveit itt és most!


--- English ---

**Exclusive Downtown Commercial Space – meticulously renovated, thoughtfully designed, ideal for a variety of activities, all on 252 m²**

For sale: a 252 m², fully renovated in 2024, basement commercial property in the heart of downtown, with street-level entrance.

**Key Features:**
✅ 252 m² total area
✅ 9 large rooms + 2 smaller rooms + 2 storage spaces
✅ 2 toilets + 1 shower (expandable if needed)
✅ Fully equipped kitchen with modern appliances
✅ Street-facing rooms with high ceilings, interior rooms: 240 cm

**Renovation & Technical Specifications:**
✅ Full renovation in 2024 – new electrical wiring and flooring
✅ Pre-wired for camera and alarm systems in every room
✅ Sewer system equipped with industrial grinder and lift pump
✅ Heat pump and H-tariff electricity meter for efficient operation
✅ Modern HVAC system in every room: heating, cooling, fresh air, with individual room temperature control
✅ Additional air-conditioning units in several rooms
✅ Triple-glazed, energy-efficient PVC windows
✅ Proximity card access system installed
✅ CAT6 wired internet in all rooms

**Architectural Highlights:**
✅ Unique and special atmosphere created by the combination of the vaulted brick ceiling and walls with white-painted surfaces and modern lighting

**Location Advantages:**
Located in the heart of downtown, the property offers excellent transport connections:
✅ Public transport within minutes (tram, metro, bus)
✅ Restaurants, cafés, and shops nearby
✅ Cultural and entertainment options within walking distance

**Who is this property ideal for?**
✅ Entrepreneurs seeking a modern office space in the city center
✅ Investors interested in room rentals or leasing opportunities
✅ Creative or business projects requiring a unique, adaptable space (e.g., hostel, massage studio, club, art studio, educational workshops, short-term rentals for multiple tenants)


The property is ready for immediate occupancy – don’t hesitate, make your plans a reality here and now!

B.Zs.
Forster Tamás

Forster Tamás

Hívjon bizalommal

+36-30-887-Mutasd!

További hirdetéseim

Ingatlaniroda
GDN Ingatlanhálózat - Zenith
+36 30 887 7351

Küldjön üzenetet

Visszahívást kérek

Hasonló ingatlanok