Kiadó Üzlethelyiség Budapest XXIII. kerület - Hősök tere

300 m2Alapterület 0 Szoba
1 200 000 Ft /Hó Ár
394806Azonosító
További adatok

Utcai Kilátás

Jó állapotú Állapot

Beton Szerkezet

Egyedi kazán Fűtés

Utcán, közterületen Parkolás

Tömegközlekedés

1968 Építés éve

Kiadó Üzlethelyiség Soroksár Hősök terén!

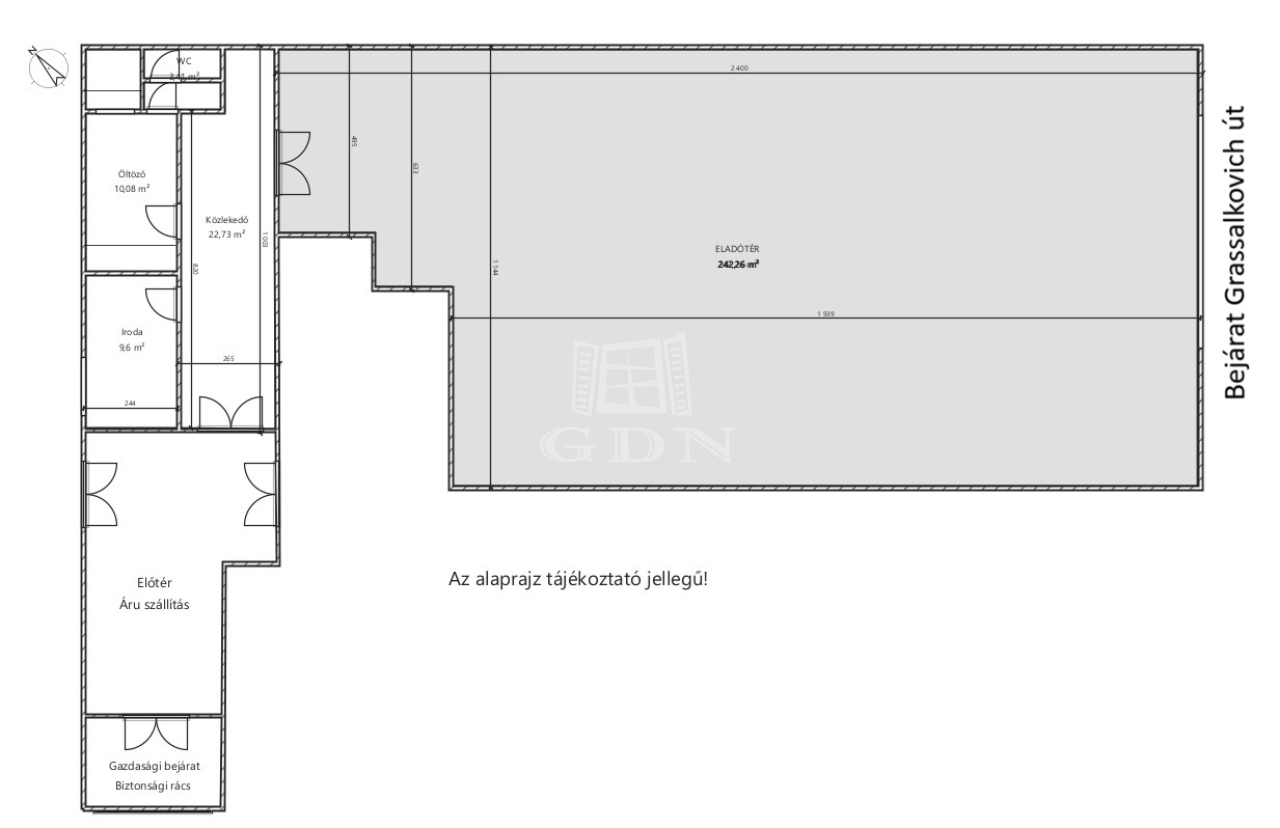
SOROKSÁR KÖZPONTI RÉSZÉN, utcafrontra nyíló összesen 300 m2-es üzlethelyiség kiadó.

Elhelyezkedése miatt számos vállalkozás részére jó lehetőséget nyújt (élelmiszer kiskereskedelem, bank, pénzügyi- és egészségügyi szolgáltatás nyújtás, bemutatóterem, iroda, felnőttképzés).

AZ INGATLAN BEOSZTÁSA:
- üzlethelyiség az utcafrontról 242 m2,
- iroda,
- teakonyha + öltöző,
- WC,
- közlekedő,
- gazdasági bejárat.

FELSZERELTSÉGE:
- fali klíma és mennyezeti fan-coil,
- tűzjelző,
- riasztó kiállás,
- biztonsági rács a hátsó gazdasági bejáratnál,
- fotocellás ajtó utcafrontról.

Víz- villany fogyasztás mérőóra alapján kerül számlázásra.
Fűtés - hűtés fan coil-okkal történik, ami légköbméter alapján kerül számlázásra.

KÖZLEKEDÉS + környezet:
Busz és H6-os HÉV megálló közelében, forgalmas helyen található, jól látható autóból és nagy gyalogosforgalom halad át előtte.
Közvetlen szomszédságában kormányablak és OTP bank. Közelben rendelőintézet és számos szolgáltató egység, bankok. Parkolás díjmentes az üzlet mellett a mellékutcákban.

BÉRLETI SZERZŐDÉS feltételei:
- Bérleti díj: 1.200.000Ft + Áfa /hó + rezsi,
- Ingatlanüzemeltetési-karbantartási díj: 100.000Ft + Áfa /hó,
- min. 2 év bérleti idő,
- szerződéskötéskor 1 havi bérleti díj áfával növelt összege,
- 2 havi kaució,
- közjegyző előtti nyilatkozat aláírása szükséges.

Irodánk 30 éves szakmai tapasztalattal áll ügyfelei rendelkezésére!

Várom szíves megkeresését!
Forster Tamás

Forster Tamás

Hívjon bizalommal

+36-30-887-Mutasd!

További hirdetéseim

Ingatlaniroda
GDN Ingatlanhálózat - Zenith
+36 30 887 7351

Küldjön üzenetet

Visszahívást kérek

Hasonló ingatlanok