Eladó Családi ház Mogyoród - Mogyoród kedvelt részén

88 m2Alapterület 4 Szoba
91 900 000 Ft Ár
395036Azonosító
További adatok

461 m2 Telek

Udvari Kilátás

Új Állapot

Tégla Szerkezet

25 m2 Erkély/terasz

Hőszivattyú Fűtés

Összkomfort Komfort

Saját beálló Parkolás

Közepes Tömegközlekedés

Amerikai konyhás

Van Kertkapcsolat

2026 Építés éve

Délnyugati Tájolás

Hitelkalkuláció – a részletekért kattintson valamelyik bank logójára!

ÚJ ÉPÍTÉSŰ, ÖNÁLLÓ CSALÁDI HÁZ ELADÓ MOGYORÓD CSENDES, DOMBOLDALI RÉSZÉN!

MODERN MŰSZAKI TARTALOM, HŐSZIVATTYÚS FŰTÉS, PADLÓFŰTÉS, KLÍMA ÉS GYORS KAPCSOLAT BUDAPESTTEL.

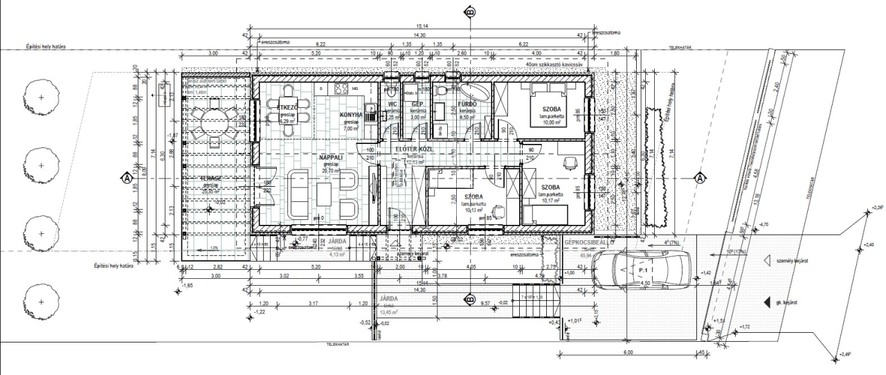
Megvételre kínálok Pest vármegyei Mogyoródon 461 nm-es telken, egy délnyugati fekvésű, nettó 88,17 nm-es, bruttó 113,52 nm-es, 3 szobás + amerikai konyhával ellátott, új építésű önálló családi házat.

Első osztályú anyagokból épülő, kulcsrakész családi ház, extra hőszigeteléssel és hőszivattyús fűtéssel. A ház Phorotherm téglából készül, 15 cm homlokzati és 30 cm födémszigeteléssel, betoncserép tetővel és háromrétegű üvegezésű, színes műanyag nyílászárókkal.

Padlófűtés, fürdőben törölközőszárítós radiátor, valamint nappaliban hűtő-fűtő klíma kerül beépítésre.

A burkolatok, szaniterek és belső ajtók meghatározott értékhatárig választhatók.

A ház riasztó előkészítéssel, kaputelefonnal, elektromos kiállásokkal, napelem- és autótöltő csatlakozási lehetőséggel készül. A telekhez kerítés, térkövezett terasz és beálló, valamint alap tereprendezés tartozik.

A vételár nem tartalmazza a lámpatesteket, függönyöket és a kertépítést.

Az ingatlant 2026 III. negyedévében kezdik el építeni.

​Településen belüli elhelyezkedés:

​Az ingatlan Mogyoród észak-keleti, domboldali részén fekszik. Ez a terület az utóbbi években jelentős fejlődésen ment keresztül, a korábban zártkerti vagy üdülőövezeti besorolású telkek nagy részét mára modern családi házakkal építették be. A környék csendes, kertvárosias jellegű, átmenő forgalomtól mentes.

​Közlekedési kapcsolatok:

​Autós közlekedés: Az M3-as autópálya és az M31-es gyorsút csomópontja néhány perc alatt elérhető, így Budapest központja forgalomtól függően 20-25 perc, a városhatár pedig 10-15 perc alatt megközelíthető.
Gödöllő városa szintén rövid idő alatt elérhető.

Tömegközlekedés: A településen áthaladó H8-as HÉV vonala közvetlen összeköttetést biztosít az Örs vezér terével. A legközelebbi állomás gépjárművel körülbelül 5-6 perc alatt érhető el, ahol P+R parkoló segíti az ingázókat.

​Helyi járatok: A Volánbusz helyközi járatai a település központját érintik, ahonnan csatlakozás biztosított Budapest vagy Gödöllő irányába.

Szolgáltatások és intézmények:

​A település központjában minden alapvető szolgáltatás megtalálható:

​Oktatás és nevelés: Bölcsőde, óvoda és általános iskola üzemel a faluban.

​Egészségügy: Háziorvosi rendelő és gyógyszertár biztosított a lakosok számára.

​Bevásárlás: A közelben helyi élelmiszerüzletek és pékség találhatók, míg a nagyobb bevásárlóközpontok (Fót, Dunakeszi, Gödöllő) autóval 10-15 perces távolságra vannak.

​Szabadidő és környezet:

​A környék kiemelkedő természeti adottságokkal rendelkezik, a közeli dombok kirándulásra és szabadtéri sportolásra alkalmasak. A település közvetlen közelében található a Hungaroring és az Aqua park, amelyek további kikapcsolódási lehetőségeket kínálnak.

INGYENES hitel tanácsadás! CSOK Ügy intézés!
BANKFÜGGETLEN hitelcentrumunk minden elérhető bank és hitelintézet ajánlatát versenyezteti az Ön kedvéért, ráadásul DÍJMENTESEN.
Önnek nincs más dolga, mint elbeszélgetni munkatársunkkal, aki a hallott információk alapján versenyre hívja a bankokat, hogy Ön hosszú távon is a legjobb konstrukciót kaphassa. A legjobb ajánlatokból végül Ön választhatja ki a nyertest.
Munkatársaink sokéves szakmai tapasztalattal várják Önt, előre egyeztetve akár a normál munkaidő után is.

Amennyiben hirdetésem felkeltette érdeklődését, várom hívását, akár hétvégén is! V.I.
Forster Tamás

Forster Tamás

Hívjon bizalommal

+36-30-887-Mutasd!

További hirdetéseim

Ingatlaniroda
GDN Ingatlanhálózat - Zenith
+36 30 887 7351

Küldjön üzenetet

Visszahívást kérek

Hasonló ingatlanok