Eladó Lakás (panel) Százhalombatta - Százhalombatta Déli lakótelep

50 m2Alapterület 2 Szoba
59 900 000 Ft Ár
394394Azonosító
További adatok

Utcai Kilátás

Felújított Állapot

Panel Szerkezet

4 m2 Erkély/terasz

Távfűtés Fűtés

Összkomfort Komfort

Utcán, közterületen Parkolás

Emelet 4

Legfelső emelet

Nincs Lift

Kiváló Tömegközlekedés

Nem Amerikai konyhás

Nincs Kertkapcsolat

1981 Építés éve

Közös költség 13 000 Ft

Délnyugati Tájolás

Hitelkalkuláció – a részletekért kattintson valamelyik bank logójára!

Lakás? Megvan. Nyugalom? Megvan. Napfény? Megvan. Csak a kanapéd hiányzik, és az is hamarosan meglesz.

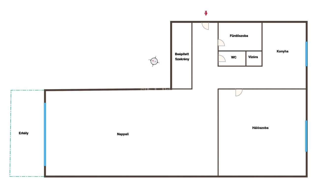
Százhalombatta Déli lakótelepén eladó egy 4. emeleti, két külön nyíló szobás, 50 m²-es, erkélyes lakás, ami kész a beköltözésre.

Dél-nyugati tájolás miatt a nap minden délután ráveti a fényét a falakra, és szinte be is költözik a nappaliba. A nyílászárók műanyagok, a nyári hőségben pedig hűtő-fűtő klíma gondoskodik a komfortról.
A lakás a panelprogram keretében felújított, ami nem csak stabil hőkomfortot, hanem alacsony rezsiköltséget is biztosít.

Saját tárolónak köszönhetően biciklit, bőröndöt vagy bármilyen apróságot el tudsz pakolni, így nem kell a lakásban kerülgetned semmit.

Dupla garázs bérleti joga a lépcsőház mellett: autód VIP helyen parkol, neked nyugalom. A garázs havi díja 55.000 Ft.

A lakás minden részlete praktikus és élhető:
- Ablakos konyha, ahol a fény játéka új energiát ad.
- Frissen festett falak, új parketta, a lakás belső tere tiszta, modern és világos.
- Fürdőszoba és WC frissen felújítva, ízléses és higiénikus.

Környék, ami egyszerűsíti az életet: buszmegálló 2 perc, vasútállomás 10 perc séta, boltok, bevásárlóközpont, iskola, óvoda és játszótér minden lépésnél kéznél.

Kiknek ajánljuk?
Fiatal pároknak, akiknek a hétköznapokhoz kell egy kis napsütés és zöld; kisgyermekes családoknak, akiknek a praktikum és a tárolási lehetőség is számít; befektetőknek, akik szeretik, ha a lakás önmagát adja el, itt mindenki megtalálja a helyét.
Forster Tamás

Forster Tamás

Hívjon bizalommal

+36-30-887-Mutasd!

További hirdetéseim

Ingatlaniroda
GDN Ingatlanhálózat - Zenith
+36 30 887 7351

Küldjön üzenetet

Visszahívást kérek

Hasonló ingatlanok