Eladó Családi ház Budapest III. kerület - Római part

420 m2Alapterület 10 + 2 Szoba
620 000 000 Ft Ár
381109Azonosító
További adatok

1403 m2 Telek

Kertre néző Kilátás

Felújított Állapot

Tégla Szerkezet

26 m2 Erkély/terasz

Gáz (cirkó) Fűtés

Luxus Komfort

Saját garázs Parkolás

Kiváló Tömegközlekedés

Amerikai konyhás

Van Kertkapcsolat

2006 Építés éve

Déli Tájolás

Hitelkalkuláció – a részletekért kattintson valamelyik bank logójára!

Eladó tágas családi ház a Római-parton!

Kivételes lehetőség a természetközeli, mégis kiváló infrastruktúrával rendelkező Római-parton! Eladásra kínálunk egy 480 m²-es, 10+2 szobás, többszintes családi házat, amely számtalan lehetőséget rejt magában.
Az ingatlan pár perc sétára van a Duna-parttól, így ideális választás lehet nagycsaládosoknak, többgenerációs együttélésre, vagy akár befektetők számára kiadásra, irodának vagy rendelőnek is remekül alakítható.
Különlegessége, hogy több generáció számára is privát létet biztosít, szükség esetén az életterek leválaszthatók.

Pince szint:
- Garázs,
- Egy kisebb és egy nagyobb tároló, illetve itt a napelem kialakításához szükséges eszközök,

Földszint:
- A ház központi tere, galériás,
- nagy belmagasságú, világos,
- különálló lakrészként is használható nappalival,
- étkező-konyha résszel, amelynek közepén egy működő kút található,
- fürdővel,
- hálószobával.

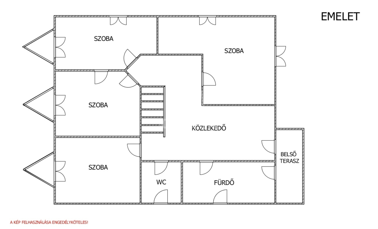
Emelet:
- 4 hálószoba,
- Fürdő,
- Galéria, amelyből a nappali szintre látni.

Udvar:
- Hatalmas telek,
- 2 db fedett garázs, és további autók beállására képes hátsó sík terület.

Főbb extrái:
- Automata garázs kapu,
- Automata öntözőberendezés,
- Több erkély,
- Felszerelt, gépesített konyha,
- Kandalló,
- Szinte minden helyiségben légkondicionáló,
- Riasztó,
- Szauna,
- Privát terasz.

Amint látja, az ingatlan megannyi lehetőséget rejt, ami nem csak saját felhasználásra, de üzleti célokra is kiválóan megfelel.

Ha egy kivételes helyen, luxus környezetben képzeli el a jövőt, ezt semmiképp ne hagyja ki!
Forster Tamás

Forster Tamás

Hívjon bizalommal

+36-30-887-Mutasd!

További hirdetéseim

Ingatlaniroda
GDN Ingatlanhálózat - Zenith
+36 30 887 7351

Küldjön üzenetet

Visszahívást kérek

Hasonló ingatlanok