Eladó Családi ház Szombathely - Oladi dombon

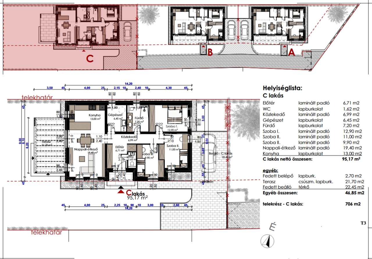
95 m2Alapterület 4 Szoba
99 750 000 Ft Ár
392757Azonosító
További adatok

706 m2 Telek

Udvari Kilátás

Új Állapot

Tégla Szerkezet

22 m2 Erkély/terasz

Hőszivattyú Fűtés

Összkomfort Komfort

Saját beálló Parkolás

Tömegközlekedés

Amerikai konyhás

Van Kertkapcsolat

2026 Építés éve

Délnyugati Tájolás

Hitelkalkuláció – a részletekért kattintson valamelyik bank logójára!

Szombathelyen az oladi dombon, aszfaltos útról megközelíthető, új építésű házak eladók. A telekre 2db 63 m2 -es ház ( amelyek lexánnal fedett gépkocsibeállókkal érintkeznek) és egy 95 m2-es különálló ingatlan épül. Az ikresített házakhoz 256 m2 saját kert tartozik. A szóló ingatlan 706 m2 telket tudhat magáénak.
A Wienerberger Porotherm téglából épülő házak magas műszaki tartalommal épülnek. Tetőszerkezete C22 I. osztályú , rovar, gomba és lángmentesítővel kezelt faanyaggal kerül kivitelezésre. Fedése Terran vagy Bramac cseréppel történik, az összes rendszer tartozékkal, előírások szerint helyenként hófogóval. Bádogos szerkezetek, a külső vízelvezetések ereszcsatornái, a lefolyócsövei és az egyéb bádogos szerkezetek 0.6 mm vastag acéllemezből készülnek. Homlokzati falfelületek 15 cm vastag EPS hőszigetelő rendszert, a lábazatok 10 cm vastag XPS lábazati hőszigetelő rendszert kapnak. A padozatokba 10 cm vastag teherbíró EPS hab hőszigetelés kerül. A födém hőszigetelése 25 cm vastag ásványgyapot szigetelőanyaggal történik. Külső nyílászárói műanyag, három rétegű üvegezéssel szerelt, fokozottan hang-és hőszigeteltek. Fűtése, a háztartási helyiségben elhelyezett 10Kw teljesítményű Gree Versati 3 hőszivattyúval történik, padlófűtéses hőleadással szabályozható termosztáttal. A hőszivattyú biztosítja a melegvizet is, egy 200 literes hőtárolós víztartállyal. Nappaliában 3.5 Kw teljesítményű hűtő-fűtő klíma kerül. Az ingatlanban riasztó, kaputelefon, előkészítés történik. Beltéri ajtók, hideg-meleg burkolatok, szaniterek, csaptelepek választhatók.. Ha bővebb tájékoztatást szeretne, kérem keressen. Vegye igénybe irodánk szolgáltatásait. Hitelügyintézésben is segítünk.
Forster Tamás

Forster Tamás

Hívjon bizalommal

+36-30-887-Mutasd!

További hirdetéseim

Ingatlaniroda
GDN Ingatlanhálózat - Zenith
+36 30 887 7351

Küldjön üzenetet

Visszahívást kérek

Hasonló ingatlanok