Eladó Ikerház Budapest XXII. kerület - Budafok kedvelt részén ÚJ Ikerház !

88 m2Alapterület 4 Szoba
149 000 000 Ft Ár
394014Azonosító
További adatok

250 m2 Telek

Kertre néző Kilátás

Új Állapot

Tégla Szerkezet

18 m2 Erkély/terasz

Hőszivattyú Fűtés

Összkomfort Komfort

Saját beálló Parkolás

Kiváló Tömegközlekedés

Amerikai konyhás

Van Kertkapcsolat

2026 Építés éve

Hitelkalkuláció – a részletekért kattintson valamelyik bank logójára!

Eladásra kínálunk Budapest XXII. kerületében Budafokon 250 m2-es kerttel rendelkező belső kétszintes, dupla komfortos, nappali + 3 szobás, összesen 87,5 m2 nettó hasznos lakóterülettel rendelkező, új építésű ikerházat.

Az ingatlan leköthető 2 db. gépkocsibeállóval - igény szerinti befejezéssel.

Elrendezés:

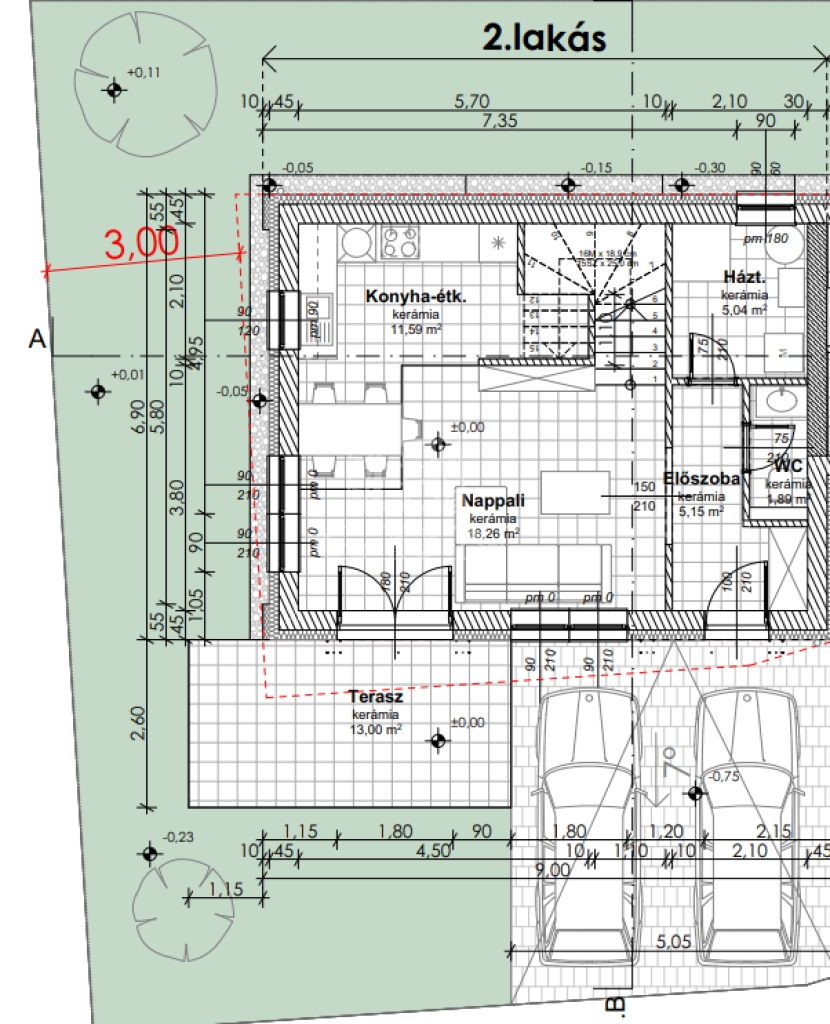
Földszint: nettó 41.93 m2 + terasz

• Nappali 18.26 m2
• Konyha - étkező 11.58 m2
• Előszoba 5.15 m2
• Mosdó 5.27 m2
• Háztartási h. 5.02 m2
• Terasz 13 m2

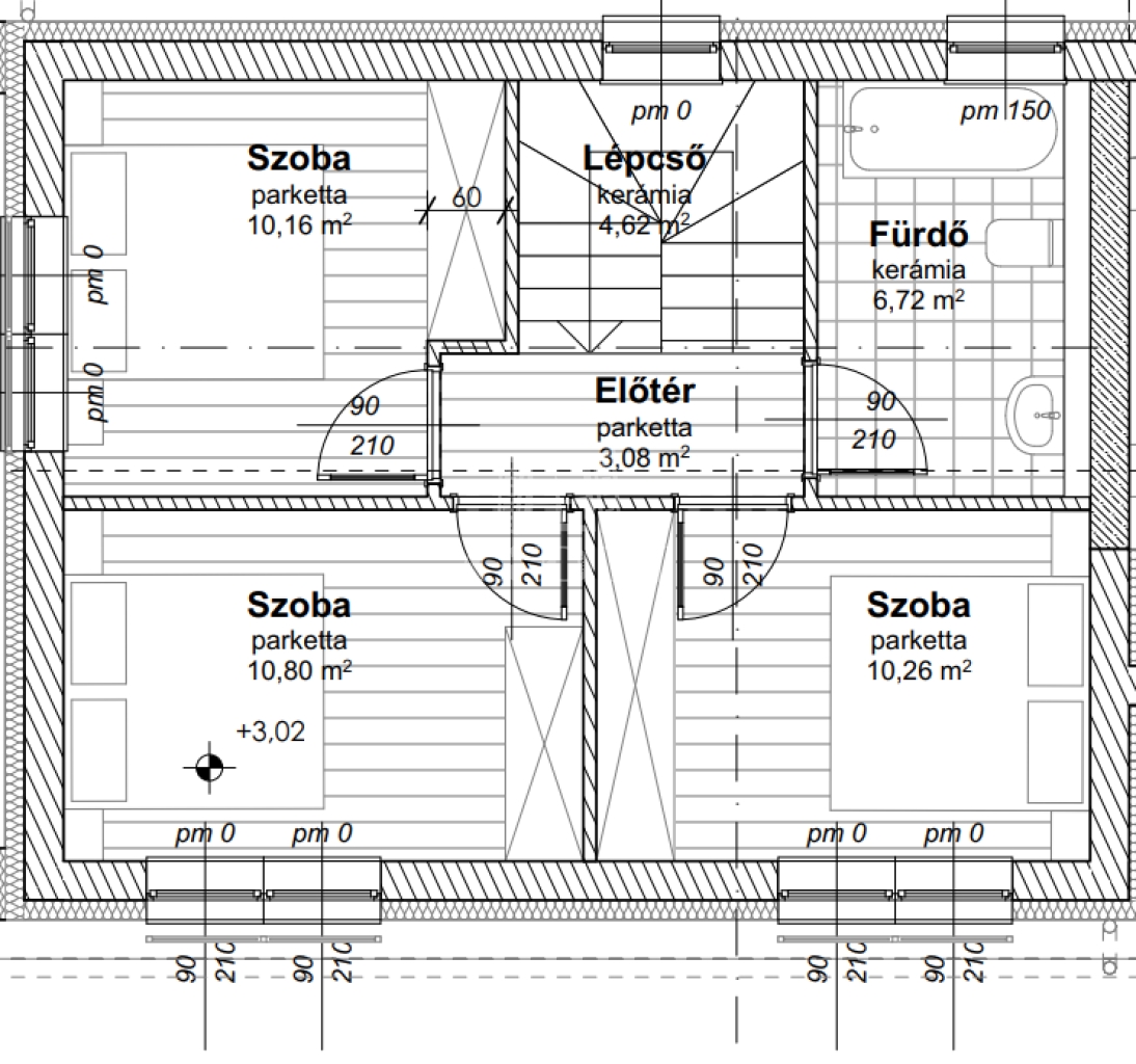
Emelet: nettó 45,64 m2

• 3 szoba 10.8 m2, 10.26 m2, 10.16 m2
• Fürdőszoba + mosdó 6.72 m2
• Előszoba 3,08 m2
• Lépcső 4,62 m2

Kert:
• 200 m2
• 2 db. autóbeálló

Műszaki paraméterek – szerkezeti leírás (részlet):
Beton sávalap. Tégla főfalak + 15 cm dryvit szigetelés.Tégla válaszfalak. Műanyag külső nyílászárók hőszigetelt üvegezéssel. Belső nyílászárók dekorfóliás ajtók. Cserép fedésű tető.

Fűtés: Az épület fűtését hőszivattyús rendszer látja el, minden helyiségben padlófűtés található.
Hideg-meleg burkolatok kiválaszthatók a műszaki leírásban rögzített árak szerint.

Tapasztalt - megbízható generál kivitelező munkájával készül a ház - referencia ingatlanjai megtekinthetőek!

Kiváló lokációval rendelkezik az ingatlan. A közelben található iskola – óvoda – bölcsőde – bevásárlóközpont.

Projekt átadás: 2026. november -december

Az ingatlant fiatal pároknak és családoknak egyaránt ajánljuk.

Amennyiben Önnek a vásárláshoz szüksége lenne hitelre egyedi kedvezménnyel,kezdeményezheti a kapcsolatfelvételt bankfüggetlen hitelügyintézőinkkel, teljesen DÍJMENTESEN.

Az ingatlan részletes ismertetése és bemutatása előre egyeztetett időpontban lehetséges, melyet nagyon rugalmasan kezelünk, akár HÉTVÉGÉN is.

Amennyiben felkeltette az érdeklődését, további kérdéseivel kapcsolatban várom jelentkezését!
Forster Tamás

Forster Tamás

Hívjon bizalommal

+36-30-887-Mutasd!

További hirdetéseim

Ingatlaniroda
GDN Ingatlanhálózat - Zenith
+36 30 887 7351

Küldjön üzenetet

Visszahívást kérek

Hasonló ingatlanok