Eladó Lakás (téglaépítésű) Taksony - ECOLAND LAKÓPARK

115 m2Alapterület 4 Szoba
115 000 000 Ft Ár
394288Azonosító
További adatok

316 m2 Telek

Kertre néző Kilátás

Építés alatt Állapot

Tégla Szerkezet

15 m2 Erkély/terasz

Hőszivattyú Fűtés

Összkomfort Komfort

Saját garázs Parkolás

Emelet Földszint

Nincs Lift

Tömegközlekedés

Amerikai konyhás

Van Kertkapcsolat

2026 Építés éve

Hitelkalkuláció – a részletekért kattintson valamelyik bank logójára!

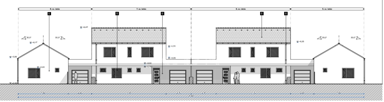
ECOLAND lakópark Taksonyban!

Taksonyban 6265 nm-es területen egy modern 12 lakásos lakópark építése hamarosan megkezdődik, és ezzel együtt elindítjuk az előértékesítést!

Amit kínálunk!
-Prémium kivitelezés,
-Korszerű, energiatakarékos lakások,
-Átgondolt alaprajzok, kényelmes életterek,
-Csendes, nyugodt környezet,
-Földszinti lakások saját kertrésszel rendelkeznek,
-Kiváló megközelíthetőség.

Legyen ön az elsők között, akik kiválaszthatják álmaik otthonát a legjobb adottságú lakások közül!

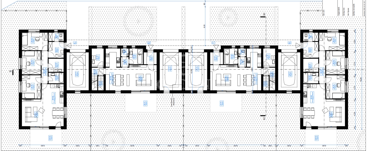
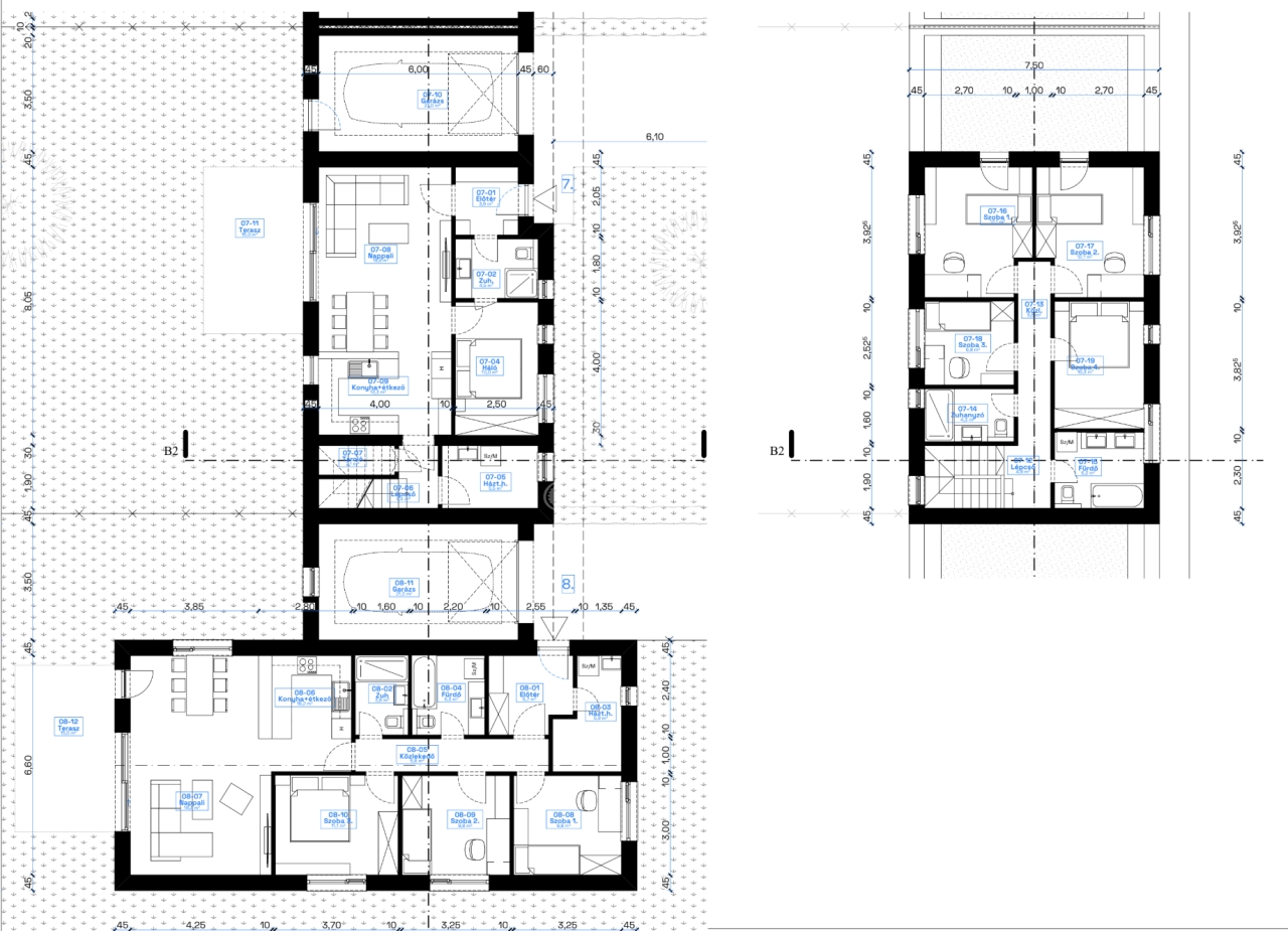
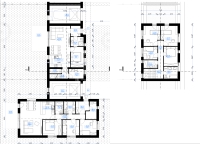
A lakások különböző méretűek, a belső terek még az ön izlése, igénye szerint alakíthatóak. A projektben különböző méretű üzlethelyiségek kialakítása is tervezett. A hirdetésben mellékelünk néhány alaprajzot.

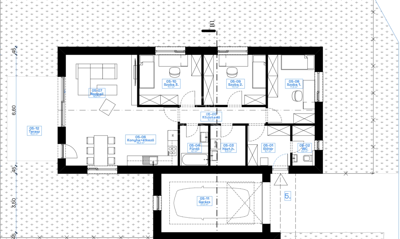
A " B " és " C " épületben kap helyet-
- 4 db földszinti lakás garázzsal + terasszal + saját kertrésszel.
nappali+étkező+konyha+3 szoba+ fürdőszoba-WC+ zuhanyzó-
WC+ házt.h.
a lakások alapterülete: nettó 115 nm + 15 nm terasz + saját
kertrész kb. 316 nm. Ára: 115.000.000.-Ft

Műszaki tartalom:
- falazat Porotherm N+F 30 tégla,
- vasbeton födém + 25 cm szigetelés,
- külső szigetelés 15 cm polisztirol,
- 3 rétegű műanyag nyílászárók,
- elektromos alumínium redőny + szúnyogháló,
- elektromos garázsajtó,
- hőszivattyús fűtésrendszer, padlófűtés,
- lakásonként 4 db Gree hűtő-fűtő klíma,
- hideg burkolatok 7.000.-Ft/nm,
- meleg burkolatok 6.000.-Ft/nm,
- beltéri ajtók 80.000.- Ft/db,
- szaniterek 800.000.-Ft-ig.
- földszinti lakások saját telekrésze lekerítve,
- elektromos autó töltési lehetőség.

Várható átadás: 2027. évvége.
A lakások 20 % önerővel leköthetők.

Irodánk 30 éves szakmai tapasztalattal áll ügyfelei rendelkezésére!
Amivel segítjük az Ön ingatlan vásárlását:
- ingyenes hitelügyintézés (CSOK és Babaváró és egyéb hitel ügyintézése is)
- jogi háttér,
- földhivatali ügyintézés,
- energetikai tanúsítvány ügyintézése,
- a vevő számára ingyenes az ingatlanközvetítés.

Várom szíves megkeresését!
Forster Tamás

Forster Tamás

Hívjon bizalommal

+36-30-887-Mutasd!

További hirdetéseim

Ingatlaniroda
GDN Ingatlanhálózat - Zenith
+36 30 887 7351

Küldjön üzenetet

Visszahívást kérek

Hasonló ingatlanok