Eladó Családi ház Mór - Móron

220 m2Alapterület 4 Szoba
99 000 000 Ft Ár
376869Azonosító
További adatok

901 m2 Telek

Udvari Kilátás

Felújított Állapot

Tégla Szerkezet

16 m2 Erkély/terasz

Elektromos Fűtés

Luxus Komfort

Saját garázs Parkolás

Tömegközlekedés

Amerikai konyhás

Van Kertkapcsolat

1998 Építés éve

Hitelkalkuláció – a részletekért kattintson valamelyik bank logójára!

Vh-004288 Móron, Fejér vármegye északnyugati részén, a Vértes és a Bakony hegység között 220 m2-es, modern, földszintes családiház 900 m2-es telekterülettel eladó.

Az ingatlan Mór központjában található csendes, rendezett utcában. A közelben minden megtalálható, ami a kényelmes életvitelhez elengedhetetlen.

A ház Porotherm 38-as tégla falazattal készült betonfödémmel, 12 cm vastag homlokzati szigeteléssel, 45 cm vastag födémszigeteléssel, magas minőségű hideg-meleg burkolatokkal, új,- műanyag hőszigetelt nyílászárókkal.

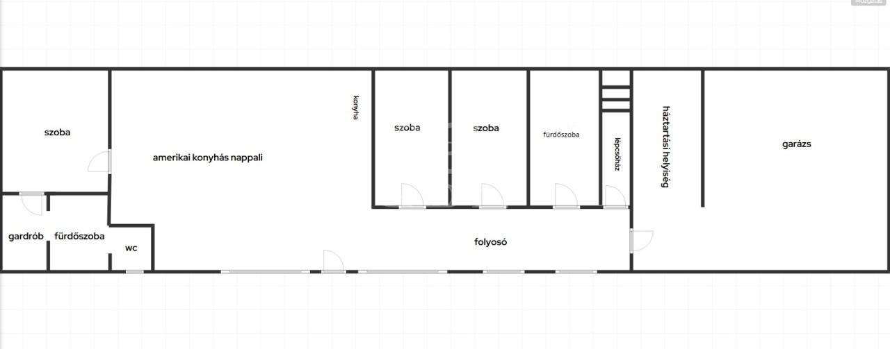
Elosztását tekintve: 220 m2 hasznos alapterületű
Egy gépesített, közel 50 m2-es amerikai konyhás nappali, egy szülői háló gardróbbal és fürdőszobával, kettő hálószoba, fürdőszoba, kazánház és egy nagyobb, mint kétállásos garázs lett kialakítva. A házhoz kapcsolódik egy 16m2-es fedett terasz is.
A ház tetőtere jelenleg beépítetlen, de kiépítésével lehetőség van a ház életterének bővítésére.

Az otthon melegét H-tarifás villanykazán biztosítja radiátoros és padlófűtéses hőleadással, a melegvizet pedig villanybojler szolgáltatja.

A házban kamerarendszer került kiépítésre.

A telek 900 m2-es, teljesen körbekerített, részben térkövezett, részben füvesített.

Eladási irányár: 99 M Ft

Az ingatlan per,-és tehermentes, azonnal költözhető.

Ideális választás mindenki számára, legyen szó gyermekkel költöző családoknak, pihenni vágyóknak, vagy két generáció együtt költözésére, illetve az elhelyezkedése miatt befektetésre is tökéletes választás.

A ház a kényelmes otthont biztosít a lakók számára, mind a belső lakrészben, mind a kert, udvar, illetve a terasz területén. Nyugalmat sugároz, a mindennapos rohanások után.

Ha felkeltette érdeklődését, hívjon bizalommal, éljen ingyenes, személyre szabott hitelügyintézés szolgáltatásunkkal. Segítünk továbbá adásvételhez szükséges ügyvédi közreműködésben, energetikai tanúsítvány, valamint értékbecslés elkészítésében.
Forster Tamás

Forster Tamás

Hívjon bizalommal

+36-30-887-Mutasd!

További hirdetéseim

Ingatlaniroda
GDN Ingatlanhálózat - Zenith
+36 30 887 7351

Küldjön üzenetet

Visszahívást kérek

Hasonló ingatlanok