Kiadó Iroda Székesfehérvár - Belváros közelében

79 m2Alapterület 0 Szoba
250 000 Ft /Hó Ár
392719Azonosító
További adatok

Utcai Kilátás

Jó állapotú Állapot

Tégla Szerkezet

Gáz (cirkó) Fűtés

Utcán, közterületen Parkolás

Nincs Lift

Tömegközlekedés

1998 Építés éve

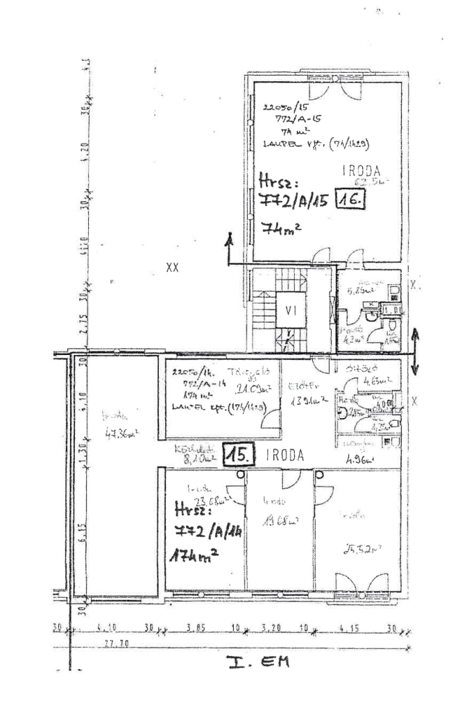
Bip-003294. Belvárosban a Gyümölcs utcában háromszintes irodaházban irodák kiadók!

A hirdetésben szereplő iroda 79m2 alapterületű és az első emeleten található. A bérlemény elosztását tekintve egy tágas, egy-légterű irodahelyiségből, egy teakonyhából, valamint egy a folyosón található, sajáthasználatú mosdóból áll.
A klimatizált iroda risztóval felszerelt, fűtéséről és a melegvízről önállóan mérhető gázkazán gondoskodik. Az épületben lift nincs. Parkolás az épület előtt az utcán lehetséges.


Bérleti díj: 250e Ft +ÁFA/hó +rezsi +2 hónap kaució



Ha felkeltette érdeklődését, hívja irodánkat bizalommal, éljen ingyenes, személyre szabott hitelügyintézés szolgáltatásunkkal. Segítünk továbbá adásvételhez szükséges ügyvédi közreműködésben, energetikai tanúsítvány, valamint értékbecslés elkészítésében.

For English details please send us a message or an e-mail, thank you.
Forster Tamás

Forster Tamás

Hívjon bizalommal

+36-30-887-Mutasd!

További hirdetéseim

Ingatlaniroda
GDN Ingatlanhálózat - Zenith
+36 30 887 7351

Küldjön üzenetet

Visszahívást kérek

Hasonló ingatlanok