Eladó Lakás (téglaépítésű) Budapest VI. kerület - Podmaniczky utca

82 m2Alapterület 3 Szoba
189 000 000 Ft Ár
390107Azonosító
További adatok

Utcai Kilátás

Felújított Állapot

Tégla Szerkezet

Gáz (cirkó) Fűtés

Összkomfort Komfort

Utcán, közterületen Parkolás

Emelet 2

Van Lift

Tömegközlekedés

Nem Amerikai konyhás

Nincs Kertkapcsolat

1950 Építés éve

Déli Tájolás

Hitelkalkuláció – a részletekért kattintson valamelyik bank logójára!

PRÉMIUM, TELJESKÖRŰEN FELÚJÍTOTT 2 HÁLÓSZOBÁS LAKÁS ELADÓ – BUDAPEST TÖRTÉNELMI KÖZPONTJÁBAN


Elhelyezkedés:

A lakás egy klasszikus, kiváló állapotú házban található, az V. és a VI. kerület határán – mindössze 50 méterre az V. kerülettől. A környék Budapest egyik legkeresettebb, patinás része:

gyalog elérhető a Parlament, a Bazilika, az Opera, a Margitsziget,

a bevásárló- és üzleti központok,

valamint több neves oktatási intézmény.



A ház rendezett, széles járdás, magas fákkal övezett utcában áll. A metró 5 perc sétára található.

Az ingatlan főbb jellemzői:
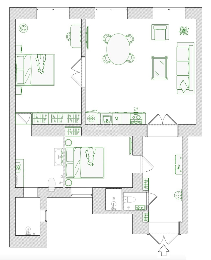
82 m², 2. emelet (4-ből)

Belmagasság: 3,9 m

Délkeleti tájolás, napfényes terek

Modern üveglift a házban

Világos, igényesen kialakított lakás két hálószobával

Helyiségek:
9 m²-es tágas előszoba

30 m²-es nagy nappali – konyhával, étkezővel, ülősarokkal

18 m²-es fő hálószoba – nagy gardróbbal és tágas saját fürdőszobával

11 m²-es második hálószoba/dolgozó/gyerekszoba – saját zuhanyzóval

Vendégmosdó

Felújítás és felszereltség:


A lakás teljeskörű, prémium felújításon esett át, minden közmű teljes cseréjével.

Modern, egységes európai design

A felújítás óta senki sem lakott benne

Új elektromos és gépészeti rendszerek

Energiatakarékos cirkó fűtés, új légkondicionálók

Kiváló minőségű anyagok

Modern tölgy parketta

Beépített, új BOSCH háztartási gépek.

Minden bútor és berendezés új.

Ár:
189 millió Ft
Forster Tamás

Forster Tamás

Hívjon bizalommal

+36-30-887-Mutasd!

További hirdetéseim

Ingatlaniroda
GDN Ingatlanhálózat - Zenith
+36 30 887 7351

Küldjön üzenetet

Visszahívást kérek

Hasonló ingatlanok