Eladó Lakás (panel) Budapest XI. kerület - Etele út

50 m2Alapterület 2 Szoba
81 900 000 Ft Ár
394488Azonosító
További adatok

Utcai Kilátás

Felújított Állapot

Panel Szerkezet

4 m2 Erkély/terasz

Távfűtés Fűtés

Összkomfort Komfort

Utcán, közterületen Parkolás

Emelet 5

Van Lift

Kiváló Tömegközlekedés

Nem Amerikai konyhás

Nincs Kertkapcsolat

1980 Építés éve

Közös költség 22 150 Ft

Délnyugati Tájolás

Hitelkalkuláció – a részletekért kattintson valamelyik bank logójára!

Csak a mi irodánk kínálatában elérhető ajánlat!

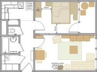
XI. kerületben Etele úton, közvetlen az Etele Pláza közelében, egy 1980-ban épült, délnyugati fekvésű, V. emeleten lévő 50m2-es, 2 szoba+loggiával rendelkező, felújított állapotú lakást kínálunk megvételre.

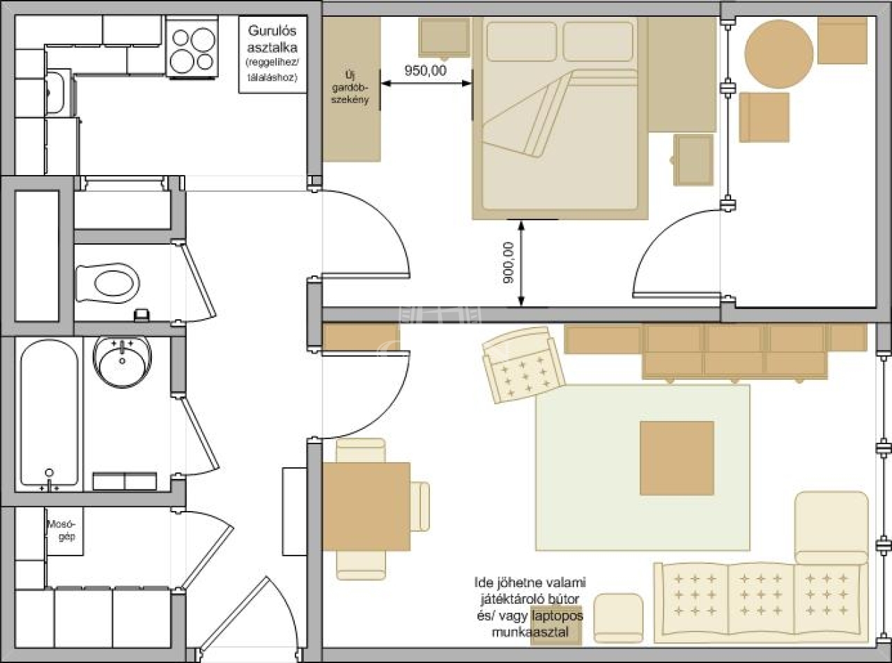
Helyiségei:
előszoba(6,4m2), gardrób(2,35m2), fürdőszoba(2,4m2), WC.(0,7m2), konyha(5m2), kamra(0,55m2), nappali(16,87m2), hálószoba(12,63m2), loggia(3,96m2)

A konyha 2024-ben, a fürdőszoba 2025-ben került felújításra.
-mindkét szobában hűtő-fűtő klíma felszerelt.
-nappaliban a nyílászárók műanyagra lettek cserélve.

Hideg-meleg vízórás lakás, közös költsége 22.150 Ft./hó., fűtését távhő szolgáltatás biztosítja.
A lépcsőház tiszta, biztonsági kamerával felszerelt.
A lakáshoz közös tároló helyiség tartozik.

A környékről: pár percre található üzletek Etele pláza, az Allee, a Savoya park (Auchan, Aldi, DM, OBI, Rossman, gyógyszertár, Kórház stb)….Bikás park séta távolságra nyújt kikapcsolódási, sportolási lehetőséget.

Óvoda, Bölcsőde, Iskola, Cukrászda, Élelmiszerbolt, Gyógyszertár, a lakástól néhány perc alatt sétatávolságban elérhetőek.
Parkolás közterületen lehetséges, fizetős övezetben.

Amennyiben Önnek a vásárláshoz szüksége lenne hitelre, OTTHON START HITEL, CSOK PLUSZ, babaváró kölcsönre, lakástakarékra, stb., kezdeményezheti a kapcsolatfelvételt bankfüggetlen hitelügyintézőinkkel, teljesen DÍJMENTESEN.

Közlekedés szempontjából szintén nagyon jó helyen van a lakás:
A Kelenföldi pályaudvar, M4-es metró, számtalan buszjárat(114, 213, 7), az 1, 47, 17, 19, 49-es villamos közelsége gyors bejutást biztosít a városba.
Autóval pár perc alatt elérhető az M7, M1, M0 autópályák, Budaörs bevásárló centrumok.

Amennyiben felkeltette az érdeklődését, kérem keressen bizalommal a hét minden napján!
Forster Tamás

Forster Tamás

Hívjon bizalommal

+36-30-887-Mutasd!

További hirdetéseim

Ingatlaniroda
GDN Ingatlanhálózat - Zenith
+36 30 887 7351

Küldjön üzenetet

Visszahívást kérek

Hasonló ingatlanok