Eladó Családi ház Baja - Baja kedvelt részén

90 m2Alapterület 2 + 1 Szoba
29 000 000 Ft Ár
392344Azonosító
További adatok

600 m2 Telek

Utcai Kilátás

Felújítandó Állapot

Vegyes falazat Szerkezet

30 m2 Erkély/terasz

Vegyes tüzelésű kazán Fűtés

Fél komfort Komfort

Saját garázs Parkolás

Kiváló Tömegközlekedés

Nem Amerikai konyhás

Van Kertkapcsolat

1975 Építés éve

Hitelkalkuláció – a részletekért kattintson valamelyik bank logójára!

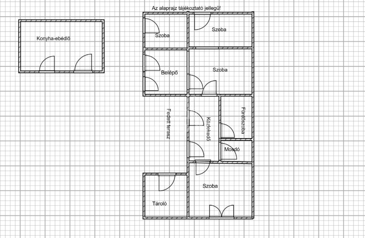
Eladó 90 nm-es családi ház Baján – Homokváros, Róka utca

Baja közkedvelt, nyugodt homokvárosi részén, a Róka utcában kínálunk megvételre egy vegyes falazatú családi házat, amely kiváló választás lehet fiatal pároknak, kisgyermekes családoknak vagy akár idősebb korosztálynak is.

✨ Az ingatlan jellemzői:
-2 külön nyíló szoba
-tágas nappali
-fürdőszoba + külön mosdó
-közlekedő
-különálló konyha

Nagy terasz – tökéletes helyszín reggeli kávézáshoz vagy esti beszélgetésekhez

Gépkocsi beálló

Kis, zárt udvar – könnyen karbantartható, mégis hangulatos

Elhelyezkedés:
Csendes, barátságos környék, mégis minden könnyen elérhető: bolt, óvoda, iskola és buszmegálló a közelben. A városközpont mindössze kb. 20 perc sétára található.

Ez az otthon ideális lehet azok számára, akik nyugodt környezetben szeretnének élni, de fontos számukra a jó elhelyezkedés is.

Irányár: 29.000.000 Ft

További információért és megtekintésért keressen bizalommal!
Forster Tamás

Forster Tamás

Hívjon bizalommal

+36-30-887-Mutasd!

További hirdetéseim

Ingatlaniroda
GDN Ingatlanhálózat - Zenith
+36 30 887 7351

Küldjön üzenetet

Visszahívást kérek

Hasonló ingatlanok