Kiadó Raktár Székesfehérvár - Városkapu Ipari Park

275 m2Alapterület 0 Szoba
400 000 Ft /Hó Ár
384531Azonosító
További adatok

Jó állapotú Állapot

Tégla Szerkezet

Hőszivattyú Fűtés

Saját beálló Parkolás

Gyenge Tömegközlekedés

1990 Építés éve

Bip-004500. Városkapu Ipari Zónában önálló ipari telephely egyben vagy megosztva kiadó!

A telephely Székesfehérvár észak-nyugati részén, aktív ipari környezetben helyezkedik el. A város elkerülő és bevezető útjai, illetve a csupán 10km-re található M7-es autópálya a városi forgalom teljes elkerülésével elérhető.
Az ingatlan korlátozás nélkül kamionnal, személygépkocsival is könnyen megközelíthető.

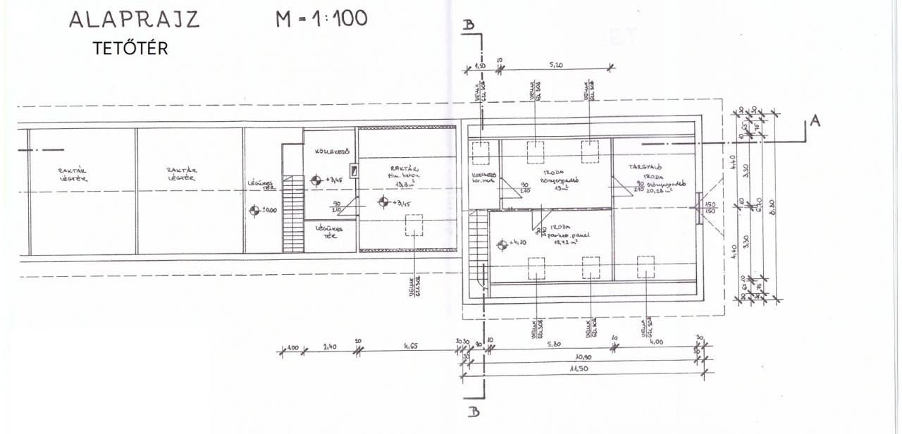
Területkimutatás:
‣ telekterület: 3851m2
‣ földszinti iroda/szoc. blokk: 118m2
‣ emeleti iroda/szoc. blokk: 71m2 (külön megállapodás tárgya!)
‣ raktár: 86m2 (három osztásban)

Jellemzők:
‣ ~3000m2 alapterületű, részben térkövezett, illetve tömörített kavicsos udvar
‣ teljesen körbekerített, széles elektromos kapun keresztül megközelíthető
‣ utcafront: ~80m
‣ raktárkapuk méretei: 4,8m x 3m
‣ raktár belmagasság: ~4m
‣ áramkapacitás: 3 x 32A
‣ fűtés: hőszivattyú + radiátor, melegvizet villanybojler biztosítja

Bérleti díj egyben: 400.000,- Ft +ÁFA/hó +rezsi +2 hó kaució
Iroda: 1500 Ft +ÁFA/hó/m2
Raktár: 1000 Ft +ÁFA/hó/m2
Udvar: 100 Ft +ÁFA/hó/m2



Ha felkeltette érdeklődését, hívja irodánkat bizalommal, éljen ingyenes, személyre szabott hitelügyintézés szolgáltatásunkkal. Segítünk továbbá adásvételhez szükséges ügyvédi közreműködésben, energetikai tanúsítvány, valamint értékbecslés elkészítésében.

For English details please send us a message or an e-mail, thank you.
Forster Tamás

Forster Tamás

Hívjon bizalommal

+36-30-887-Mutasd!

További hirdetéseim

Ingatlaniroda
GDN Ingatlanhálózat - Zenith
+36 30 887 7351

Küldjön üzenetet

Visszahívást kérek

Hasonló ingatlanok