Eladó Sorház Szigetszentmiklós - Városközpont

179 m2Alapterület 3 + 2 Szoba
89 000 000 Ft Ár
386847Azonosító
További adatok

1000 m2 Telek

Kertre néző Kilátás

Felújított Állapot

Tégla Szerkezet

12 m2 Erkély/terasz

Gáz (cirkó) Fűtés

Dupla komfort Komfort

Saját garázs Parkolás

Kiváló Tömegközlekedés

Nem Amerikai konyhás

Van Kertkapcsolat

1986 Építés éve

Keleti Tájolás

Hitelkalkuláció – a részletekért kattintson valamelyik bank logójára!

Kiváló lehetőség! 3%-os OTTHON START hitelre alkalmas lakás Szigetszentmiklós központjában eladó, garázzsal, újonnan kialakított 5,4 KW napelemrendszerrel, klímákkal!
Minimális rezsiköltség!!!

A város szívében elhelyezkedő, nagyon jó infrastruktúrával rendelkező ingatlan egy négy lakásos sorház 2. lakása. Ajánlom nagycsaládosok, illetve összeköltözők figyelmébe, ezt a 3 szintes, tágas 5 szobával, két fürdőszobával rendelkező otthont amely 179 m2 alapterületű.

Az 1986-ban épült társasház 1000 nm-es osztatlan közös tulajdonú telken helyezkedik el.
A lakásoknak külön helyrajzi számuk van.

A lakás bejáratánál szép előkert fogad.
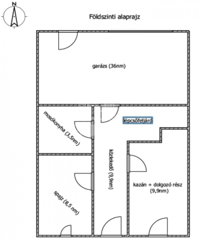
Földszint:
- bejárat, közlekedő,
- kazánhelyiség (a helyiség méretei és világos ablakkal rendelkező adottsága miatt egy külön dolgozó szoba is itt kapott helyet),
- kamra polcrendszerrel,
- mosókonyha, WC-vel mosdóval,
- lépcsőház,
- garázs, beépített masszív polcrendszerrel, fűthető, szerelőaknás, a lakás második bejárási lehetősége.

Emelet:
- közlekedő,
- fürdőszoba káddal, WC-vel,
- nappali nagy ablakokkal, nyugati fekvésű loggia kapcsolattal,
- ebédlő, hangulatos terasszal,
- konyha, melyet egy boltív választ el az ebédlőtől,
- lépcsőház.

Tetőtér:
- közlekedő,
- fürdőszoba zuhanyzóval, WC-vel,
- 2 tágas szoba és 2 hálószoba, kiváló minőségű új tetőtéri ablakokkal (Velux fényzáró rolóval),

Műszaki paraméterek:

Fűtését gázkazán biztosítja, hőleadó radiátorokkal (melyek 2020-ban lettek felújítva).
Új Ariston típusú villanybojler szolgáltatja a melegvizet.
A nyílászárók is újak (hő és hangszigetelt fa szerkezetűek árnyékoló zsalugáterrel).
Az összes szoba klímával (5 db) felszerelt!
A szobákban parketta, minden más helyiségben járólap burkolat van.
Az épület téglából épült, cserép tetőfedéssel, 2024-ben részben újra cserepezve.
A homlokzat nemrégiben 8 cm-es dryvit szigetelést és új színt kapott.

Az épület körbejárható. A lakások szépen gondozott saját előkerttel, közös oldalkerttel, fúrt kútról működő locsoló hálózattal, valamint több autó számára biztosított beállási lehetőséggel rendelkeznek.

A közelben elérhetőek tömegközlekedési eszközök, üzletek, orvosi rendelők, bankok, iskolák, óvodák.
Irodánk 30 éves tapasztalattal segíti ügyfelei ingatlanvásárlását!

Várom megtisztelő hívását!
Forster Tamás

Forster Tamás

Hívjon bizalommal

+36-30-887-Mutasd!

További hirdetéseim

Ingatlaniroda
GDN Ingatlanhálózat - Zenith
+36 30 887 7351

Küldjön üzenetet

Visszahívást kérek

Hasonló ingatlanok