Eladó Lakás (téglaépítésű) Budapest XII. kerület - Moha utca

128 m2Alapterület 3 Szoba
610 000 €(~ 222 595 100 Ft)
375733Azonosító
További adatok

1603 m2 Telek

Panoráma Kilátás

Új Állapot

Tégla Szerkezet

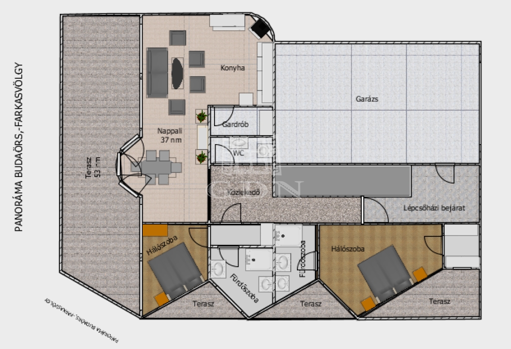
53 m2 Erkély/terasz

Hőszivattyú Fűtés

Dupla komfort Komfort

Saját garázs Parkolás

Emelet Földszint

Nincs Lift

Közepes Tömegközlekedés

Nem Amerikai konyhás

Nincs Kertkapcsolat

2023 Építés éve

Délnyugati Tájolás

Hitelkalkuláció – a részletekért kattintson valamelyik bank logójára!

ÁLOM LAKÓKÖRNYEZET, PANORÁMA ÉS LUXUS A VÁROS FELETT!

A luxus otthon a Budai oldal kiemelt részén a Farkasvölgy-Csillebérc városrészek ölelésében, csendes hegyvidéki környezetben, a tájvédelmi terület közelében helyezkedik el! A lakáshoz tartozó hatalmas méretű teraszról csodálatos panoráma nyílik a városra, valamint a Frank hegyre.

A szűk lokáció pont attól egyedi, hogy 10 PERCEN BELÜL ELÉRHETŐK A XII. ÉS A XI. KERÜLET FREKVENTÁLT RÉSZEI, vagy akár Budaörs, továbbá az M7-es, illetve M1-es autópálya kivezető szakasza (elkerülve a városi forgalmat)!

Az ingatlan kivitelezésénél készített fotók, alaprajzok, tervdokumentációk igény szerint rendelkezésre állnak!

Rövid szerkezeti, műszaki tartalom:
- tetőfedés: antracit színű betoncserép + PREFA rendszerű alulemez bádogozás,
- födém: vasbeton monolit födémszerkezet, előre gyártott és monolit kiváltók,
- vázszerkezet: 30 cm égetett vázkerámia, (Porotherm klíma),
- szigetelés: 15 cm vastag dryvit
- belső válaszfal: 10 cm vastag válaszfaltégla, lakásokat elválasztó fal: 30 cm vastag hang-gátló téglával,
- 3 rétegű üveg, 5 légkamrás nyílászárók,
- hőszivattyús rendszer, padló és mennyezetfűtés.

A bruttó 128 m2-es lakáshoz kapcsolódó további helyiségek:
- teraszok: 53nm,
- garázs 16nm.

FIGYELEM, az épületben további 2 lakás lett kialakítva, melyek külön emeleten helyezkednek el. A 3 lakásos társasház saját belső medencével, masszás káddal, valamint egy Finn szaunával rendelkezik. Ezen egységek használata a későbbi lakók által meghatározott társasházi szabályzatban kerül rögzítésre.

Extrák:
- épületben belső medence és kiépített wellness részleg,
- minőségi burkolatok, szaniterek és egyedi, átgondolt tervezés,
- távirányítós, motoros úszó kapu,
- 5 ponton záródó biztonsági bejárati ajtó
- fűtött garázs,
- Hitachi típusú hőszivattyús fűtésrendszer, padló és mennyezet fűtéssel.
Forster Tamás

Forster Tamás

Hívjon bizalommal

+36-30-887-Mutasd!

További hirdetéseim

Ingatlaniroda
GDN Ingatlanhálózat - Zenith
+36 30 887 7351

Küldjön üzenetet

Visszahívást kérek

Hasonló ingatlanok