Eladó Családi ház Dunaharaszti - Dunaharaszti, Dunaparthoz közeli

280 m2Alapterület 5 Szoba
199 000 000 Ft Ár
392985Azonosító
További adatok

825 m2 Telek

Panoráma Kilátás

Jó állapotú Állapot

Tégla Szerkezet

38 m2 Erkély/terasz

Egyedi kazán Fűtés

Összkomfort Komfort

Saját garázs Parkolás

Tömegközlekedés

Nem Amerikai konyhás

Van Kertkapcsolat

1980 Építés éve

Hitelkalkuláció – a részletekért kattintson valamelyik bank logójára!

Eladó önálló családi ház Dunaparthoz közeli utcában.

A ház hasznos alapterülete 280 m2, és öt szobával rendelkezik. Az ingatlan 825 m2-es telken helyezkedik el.

Az ingatlan sok lehetőséget rejt magában, akár iroda vagy egyéb vállalkozás kialakítására is alkalmas.
A Dunapart közelsége miatt a környezet ideális pihenésre, kikapcsolódásra.

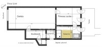
Az ingatlan beosztása:
Pince szint:
- garázs 53,5 m2
- szoba 23,1 m2
- szauna + fürdő + WC 16,3 m2
- kazánház 4,4 m2
- közlekedő 9,7 m2

Földszint:
- előtér 8,9 m2
- wc 1,6 m2
- étkező 18,3 m2
- konyha 16,8 m2
- szoba 40 m2
- terasz (utcafront) 25 m2
- terasz 12,9 m2

Emelet:
- közlekedő 5,2 m2
- szoba 23,3 m2 (190cm alatti: 15,9 m2)
- szoba 38,2 m2 (190cm alatti: 25,9 m2)
- fürdő+wc 12,9 m2 (190cm alatti: 8,4 m2)

Felszereltség:
- elektromos garázskapu,
- elektromos kapu,
- 3 rétegű fa nyílászárók,
- kandalló,
- 10 kW napelem,
- riasztó,
- gépkocsi beálló.

A közlekedés kiváló, busz és HÉV által Budapest Közvágóhíd 20 perc alatt elérhető, autóval pár perc az M0-ás autópálya. A közelben LIDL és Aldi nyújt bevásárlási lehetőséget.

Befektetésnek is alkalmas, a környéken 600.000-900.000 Ft/hó + rezsi áron vannak hasonló kiadó ingatlanok, ami évente 7.000.000,- Ft bevételt is jelenthet.

Amivel segítjük az Ön ingatlanvásárlását:
- ingyenes hitelügyintézés,
- jogi háttér,
- földhivatali ügyintézés,
- energetikai tanúsítvány.

Irodánk 30 éves szakmai tapasztalattal áll ügyfelei rendelkezésére!
Várom szíves megkeresését!
Forster Tamás

Forster Tamás

Hívjon bizalommal

+36-30-887-Mutasd!

További hirdetéseim

Ingatlaniroda
GDN Ingatlanhálózat - Zenith
+36 30 887 7351

Küldjön üzenetet

Visszahívást kérek

Hasonló ingatlanok