Eladó Családi ház Érd - Riminyáki út

180 m2Alapterület 4 + 1 Szoba
147 000 000 Ft Ár
393167Azonosító
További adatok

577 m2 Telek

Udvari Kilátás

Jó állapotú Állapot

Tégla Szerkezet

Gáz (cirkó) Fűtés

Összkomfort Komfort

Saját garázs Parkolás

Kiváló Tömegközlekedés

Nem Amerikai konyhás

Van Kertkapcsolat

1970 Építés éve

Délnyugati Tájolás

Hitelkalkuláció – a részletekért kattintson valamelyik bank logójára!

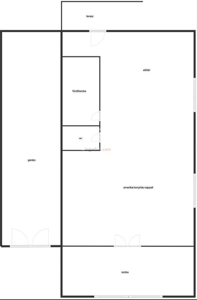
Az ingatlan egyik legnagyobb előnye, hogy a lakóházon kívül a telken még az alábbi, különálló épületek is megtalálhatók:

-Önálló, külön bejáratú üzlethelyiség.
-Különálló tároló/raktár.
-Fedett gépkocsibeálló.

Ház:
Az ingatlan két külön lakásra osztható, így rugalmasan használható akár bérbeadásra, akár saját vállalkozás + lakhatás kombinációra is.


Alsó szinten nappali, étkező-konyha, 2 szoba és fürdő található.

Tetőtéri rész amerikai konyhás nappalival + hálóval, külön WC-vel és fürdővel rendelkezik.
Itt akár önálló bérlői egységek vagy egy nagyobb családi otthon is kialakítható.
37m2-es hosszú, szerelőaknás garázs.

Nyílászárók: vegyes típusúak (modern fa és műanyag)
Új villanyhálózat.

Elhelyezkedés: frekventált, főút menti pozíció. Jó láthatóság!
Rugalmas beosztás: különálló egységek kialakítására.
Többféle hasznosítás: lakó + üzleti funkció egy helyen.
Erős piaci kereslet: az ilyen jellegű ingatlanok hosszú távon stabil bérleti lehetőséget kínálnak (pl. irodának vagy szolgáltató egységnek is keresett).

AMENNYIBEN NEM RENDELKEZIK A TELJES VÉTELÁRRAL, segítünk Önnek megtalálni a legjobb megoldást!
BANKFÜGGETLEN hitelcentrumunk minden elérhető bank és hitelintézet ajánlatát versenyezteti az Ön kedvéért, ráadásul díjmentesen. Önnek nincs más dolga, mint elbeszélgetni munkatársunkkal, aki a hallott információk alapján versenyre hívja a bankokat, hogy Ön hosszú távon is a legjobb konstrukciót kaphassa. A legjobb ajánlatokból végül Ön választhatja ki a nyertest. Munkatársaink sokéves szakmai tapasztalattal várják Önt, előre egyeztetve akár a normál munkaidő után is.
Forster Tamás

Forster Tamás

Hívjon bizalommal

+36-30-887-Mutasd!

További hirdetéseim

Ingatlaniroda
GDN Ingatlanhálózat - Zenith
+36 30 887 7351

Küldjön üzenetet

Visszahívást kérek

Hasonló ingatlanok