Eladó Családi ház Úrhida - újépítésű övezetben

130 m2Alapterület 5 Szoba
106 500 000 Ft Ár
394800Azonosító
További adatok

800 m2 Telek

Udvari Kilátás

Új Állapot

Tégla Szerkezet

35 m2 Erkély/terasz

Hőszivattyú Fűtés

Összkomfort Komfort

Saját beálló Parkolás

Tömegközlekedés

Amerikai konyhás

Van Kertkapcsolat

2026 Építés éve

Hitelkalkuláció – a részletekért kattintson valamelyik bank logójára!

Vh-004792. Úrhidán, új építésű házas, csendes övezetben 130m2 hasznos alapterületű, nappali +4 tágas hálószobás, ÖNÁLLÓ, A+ energetikai hatékonyságú családi ház kulcsrakész állapotban eladó!

Költözhető: 2026. július

Az ingatlan a mai kornak megfelelő műszaki tartalommal készül:
- Porotherm 30-as falazat, 20cm vastagságú hőszigeteléssel
- 10-es, szintén tégla szerkezetű válaszfalak
- vasbeton koszorú
- ácsolt tetőszerkezet
- járható, fa födémszerkezet 30cm vastagságú fújt szigeteléssel
- Bramac cserépfedés
- hőszivattyús padlófűtés
- kívül barna, belül fehér 3 rétegű nyílászárók
- 3x25 A kapacitású villanyhálózat

Felszereltség:
- hideg-meleg burkolatok
- víz,-és villany szerelvényezés
- H-tarifás óra előkészítés
- motoros redőnyök minden nyílászárón
- riasztó alapszerelés
- elektromos autó töltő kiállás
- 3 irányból körbekerített telek
- kerticsap
- klíma előkészítés a nappaliban
- gázcsonk a telken belül

Nem része a vételárnak: bútorok, lámpatestek, térkövezés, utcafronti kerítésépítés, tereprendezés.

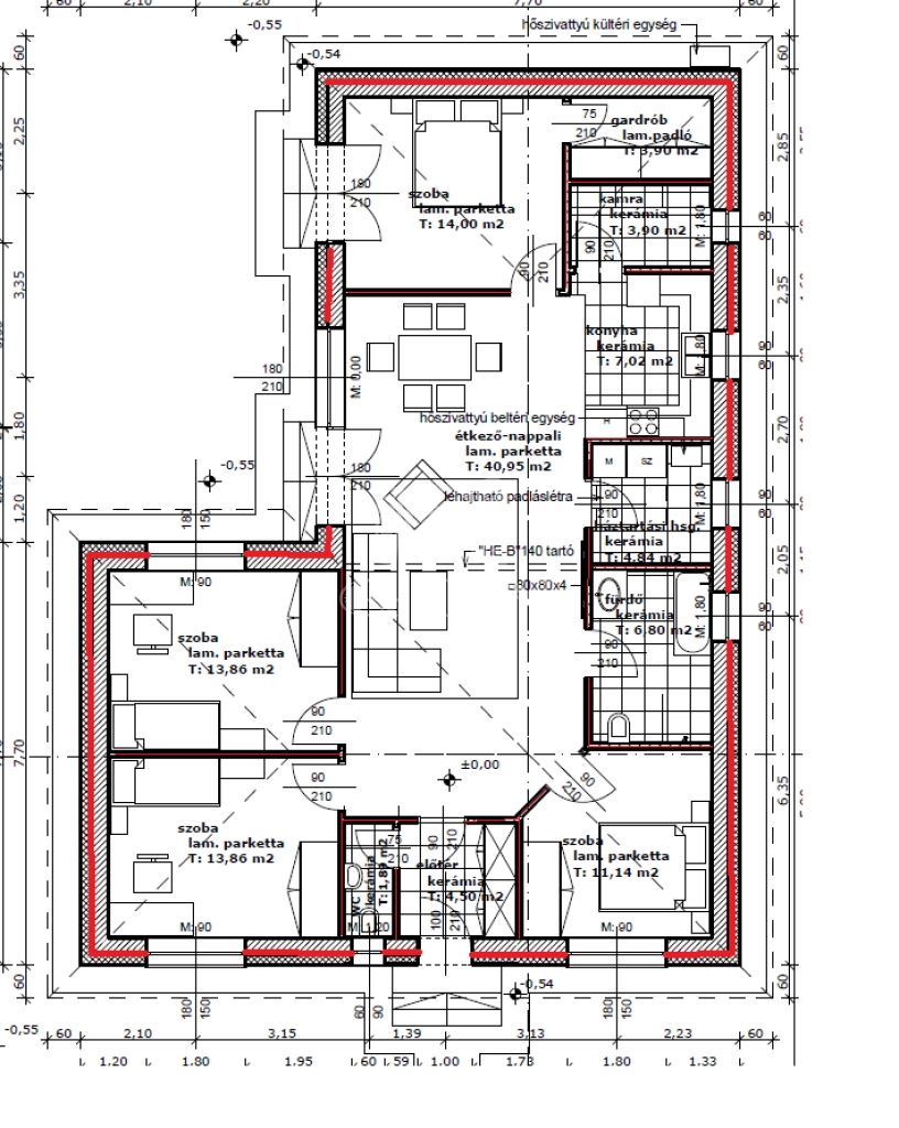
Elrendezését tekintve 130m2 a hasznos alapterülete.
- előszoba 4,5m2
- vendég WC 1,9m2
- szoba 13,9m2
- szoba 13,9m2
- szoba 11,1m2
- fürdőszoba 6,8m2
- háztartási helyiség 4,8m2
- nappali-étkező 41m2
- konyha 7m2
- kamra 3,9m2
- szoba 14m2
- gardrób 3,9m2
A házhoz kapcsolódik egy 32m2-es terasz is.

Eladási ár: 106,5 M Ft (kulcsrakész árra vonatkozik)
(Készpénzes vásárlás esetén árengedmény!)

Ha felkeltette érdeklődését, hívjon bizalommal, éljen ingyenes, személyre szabott hitelügyintézés szolgáltatásunkkal. Segítünk továbbá adásvételhez szükséges ügyvédi közreműködésben, energetikai tanúsítvány, valamint értékbecslés elkészítésében.

For English information please send a message.
Forster Tamás

Forster Tamás

Hívjon bizalommal

+36-30-887-Mutasd!

További hirdetéseim

Ingatlaniroda
GDN Ingatlanhálózat - Zenith
+36 30 887 7351

Küldjön üzenetet

Visszahívást kérek

Hasonló ingatlanok