Eladó Sorház Veresegyház - Csodaszarva utca

123 m2Alapterület 5 Szoba
119 900 000 Ft Ár
395178Azonosító
További adatok

207 m2 Telek

Udvari Kilátás

Felújított Állapot

Tégla Szerkezet

5 m2 Erkély/terasz

Gáz (cirkó) Fűtés

Összkomfort Komfort

Saját garázs Parkolás

Tömegközlekedés

Amerikai konyhás

Van Kertkapcsolat

1993 Építés éve

Hitelkalkuláció – a részletekért kattintson valamelyik bank logójára!

Aladásra kínálok Veresegyház kedvelt részén egy sorházat, utolsó lakásként a sorban.
A tömb 6 lakásból áll.
Teljes körű műszaki és esztétikai felújításnak köszönhetően újszerű állapot, modern, letisztult külső, azonnal költözhető.
•Méretéből és elosztásából fakadóan kisebb és nagyobb családoknak is ideális választás.
•Kerkapcsolat és erkélyek: valódi, kis ráfordítású életteret nyújt.
•Garázs, közvetlen bejárattal, elektromos kapuval!

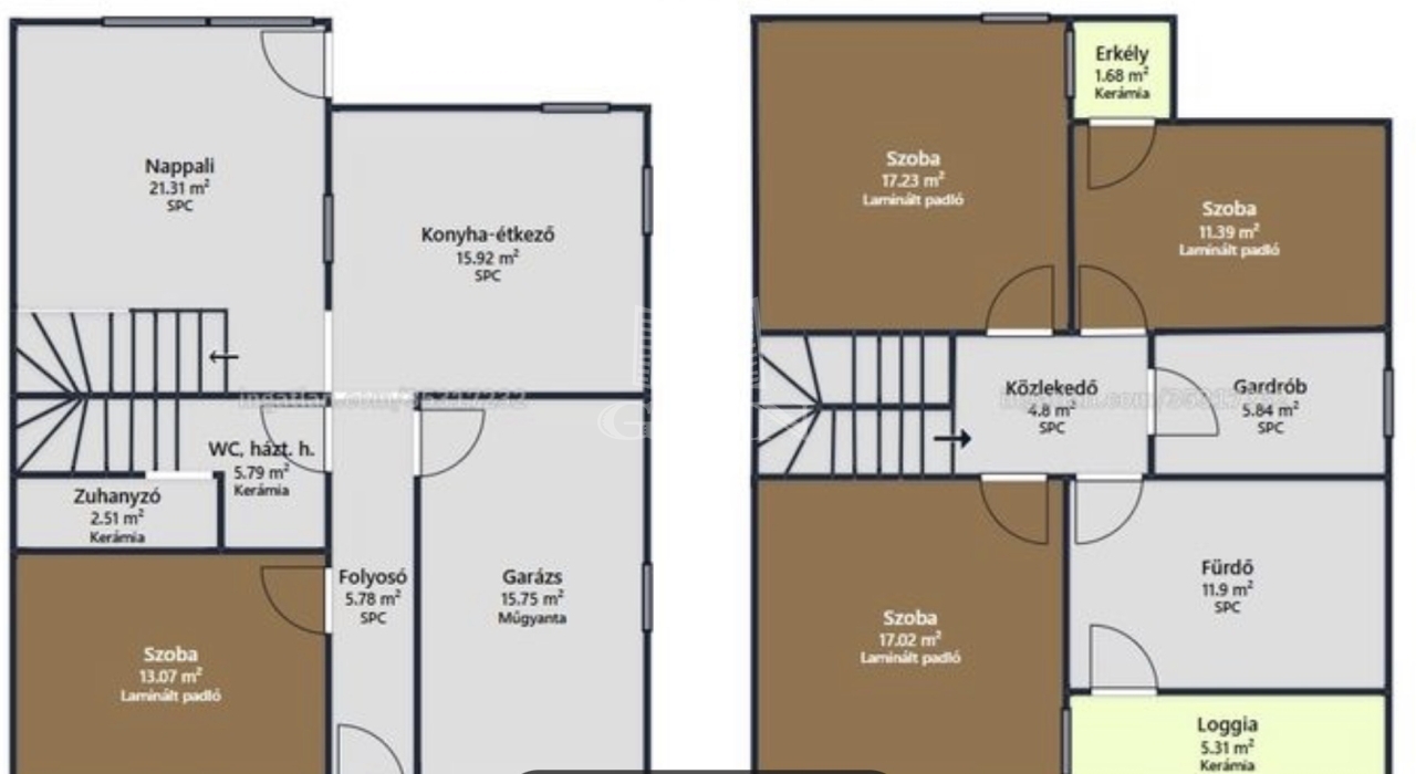
Földszint:
•tágas, világos nappali kertkapcsolattal
•külön nyíló szoba, hálónak és dolgozónak is tökéletes
•konyha-étkező
•zuhanyzós fürdőszoba + WC
•folyosó
•garázs közvetlen kapcsolattal

Emelet:
•3 külön nyíló hálószoba
•nagy méretű kádas fürdőszoba
•külön gardrób helyiség
•közlekedő
•2 erkély

Műszaki tartalom:
•felújított fűtésrendszer (kombi cirkó radiátorokkal)
•felújított villamos hálózat (1x32A, jó szakaszolás)
•új gipszbeton lépcső
•teljeskörűen felújított modern fürdők
•2 rétegű műanyag hőszigetelt nyílászárók redőnnyel és szúnyoghálóval
•10 cm szigetelés
•tetőablak és teljes héjazat csere és 20 cm kőzetgyapot födémszigetelés

A felújítás 2026 április végére befejeződik, de már jelenleg is megtekinthető.

Veresegyház egyik legkeresettebb részén található:
•nyugodt, családbarát környezet, kiváló, befogadó utcaközösség
•jó infrastruktúra
•iskola, óvoda, bevásárlási lehetőségek a közelben

Az ingatlan rövid határidővel birtokba vehető és azonnal költözhető állapotban kerül átadásra.
Forster Tamás

Forster Tamás

Hívjon bizalommal

+36-30-887-Mutasd!

További hirdetéseim

Ingatlaniroda
GDN Ingatlanhálózat - Zenith
+36 30 887 7351

Küldjön üzenetet

Visszahívást kérek

Hasonló ingatlanok