Eladó Családi ház Dunaharaszti - LUXUSHÁZ MEDENCÉVEL,KERTITÓVAL!

137 m2Alapterület 3 + 1 Szoba
239 000 000 Ft Ár
384736Azonosító
További adatok

1023 m2 Telek

Kertre néző Kilátás

Új Állapot

Tégla Szerkezet

42 m2 Erkély/terasz

Hőszivattyú Fűtés

Luxus Komfort

Saját garázs Parkolás

Kiváló Tömegközlekedés

Amerikai konyhás

Van Kertkapcsolat

2024 Építés éve

Délnyugati Tájolás

Hitelkalkuláció – a részletekért kattintson valamelyik bank logójára!

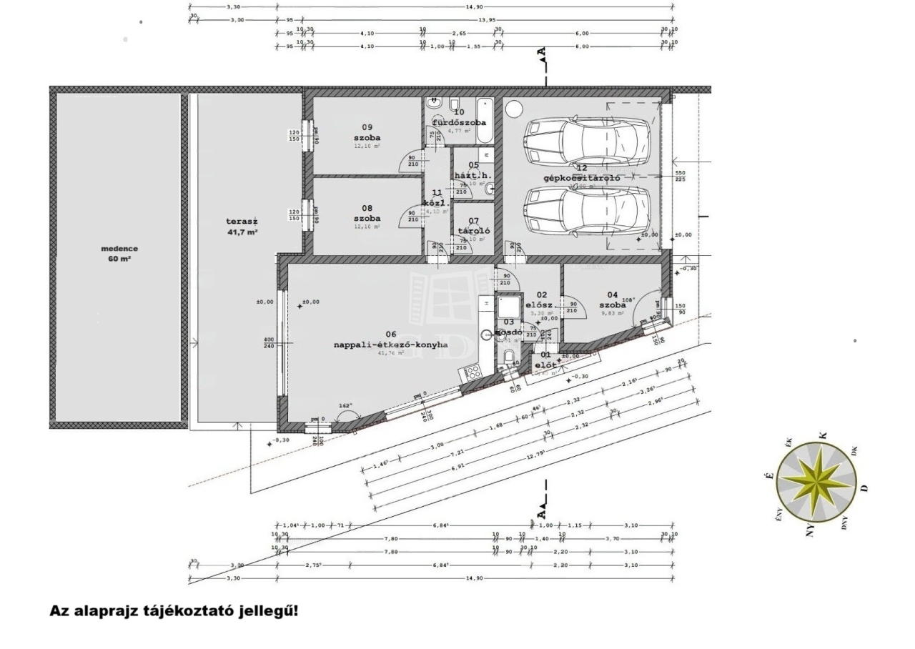
Eladó Dunaharasztin egy impozáns 4 szobás dupla komfortos 135,47m2-es önálló családi ház 1023m2-es telekkel.

**Épület jellemzői:**

•Az ingatlan 2024-ben épült egyedi tervezéssel a tetőszerkezet beton gerendás beton födémmel készült 40 cm-es szigeteléssel. A homlokzati 15 cm-es, lábazati 15 cm-es, az aljzat 15 cm-es hőszigetelést kapott. A terasz 42m2-es.

•A fűtés: Hőszivattyús Hűtés-fűtés rendszer, minden helyiségben padlófűtés/hűtés és mennyezeti fűtés/hűtés. Helyiségeként külön hőfokvezérlés. Fischer légkondicionáló került a nappaliban felhelyezésre.

•Hőcserélős, friss levegőszellőztető rendszer.

•A műanyag nyílászárok automata alumínium rejtett redőnyökkel és szúnyoghálóval szereltek.

•A hálózat 3X25 amperrel betáppal rendelkezik, Napelem rendszer kiépítve. 19,5 kW + H tarifás mérővel.

•Biztonságot fokozza a kiépített riasztó és kamerarendszer.

•A parkosított térkövezett kertet fúrt kúttal ellátott elektromos öntözőrendszer locsolja.

•A gondozott kertben egy 15x4 méteres, LEDVILÁGÍTÁSSAL, vízeséssel ellátott 60m2-es medence, valamint 30 méteres, öntisztuló kerti tó is helyet kapott.

•8 személyes kültéri finn szauna „csillagos égbolt” belső dizájnnal.

•A parkolás elektromos kapun keresztül a garázsban megoldott.

•Az összes helyiségben a világítás egyedi, mind formailag mind fényerejét tekintve.

**INGATLAN HELYSZÍNE, LOKÁCIÓ:**

Az eladó családi ház csendes, rendezett környezetben, jól megközelíthető helyen van. A környék infrastruktúrája kiváló, a főbb közlekedési csomópontok gyorsan elérhetők.
Az ingatlan környéke biztonságos és barátságos lakóközösséggel büszkélkedhet.

Kihagyhatatlan ajánlatok: CSOK+, kedvezményes kamatozású lakáshitelek.
Az ország szinte összes bankjának a hiteleit is kínáljuk, egyedi, általunk igénybe vehető kedvezményekkel, díjmentes ügyintézéssel

Amennyiben felkeltette a hirdetés a figyelmét, hívjon bizalommal!
Forster Tamás

Forster Tamás

Hívjon bizalommal

+36-30-887-Mutasd!

További hirdetéseim

Ingatlaniroda
GDN Ingatlanhálózat - Zenith
+36 30 887 7351

Küldjön üzenetet

Visszahívást kérek

Hasonló ingatlanok